
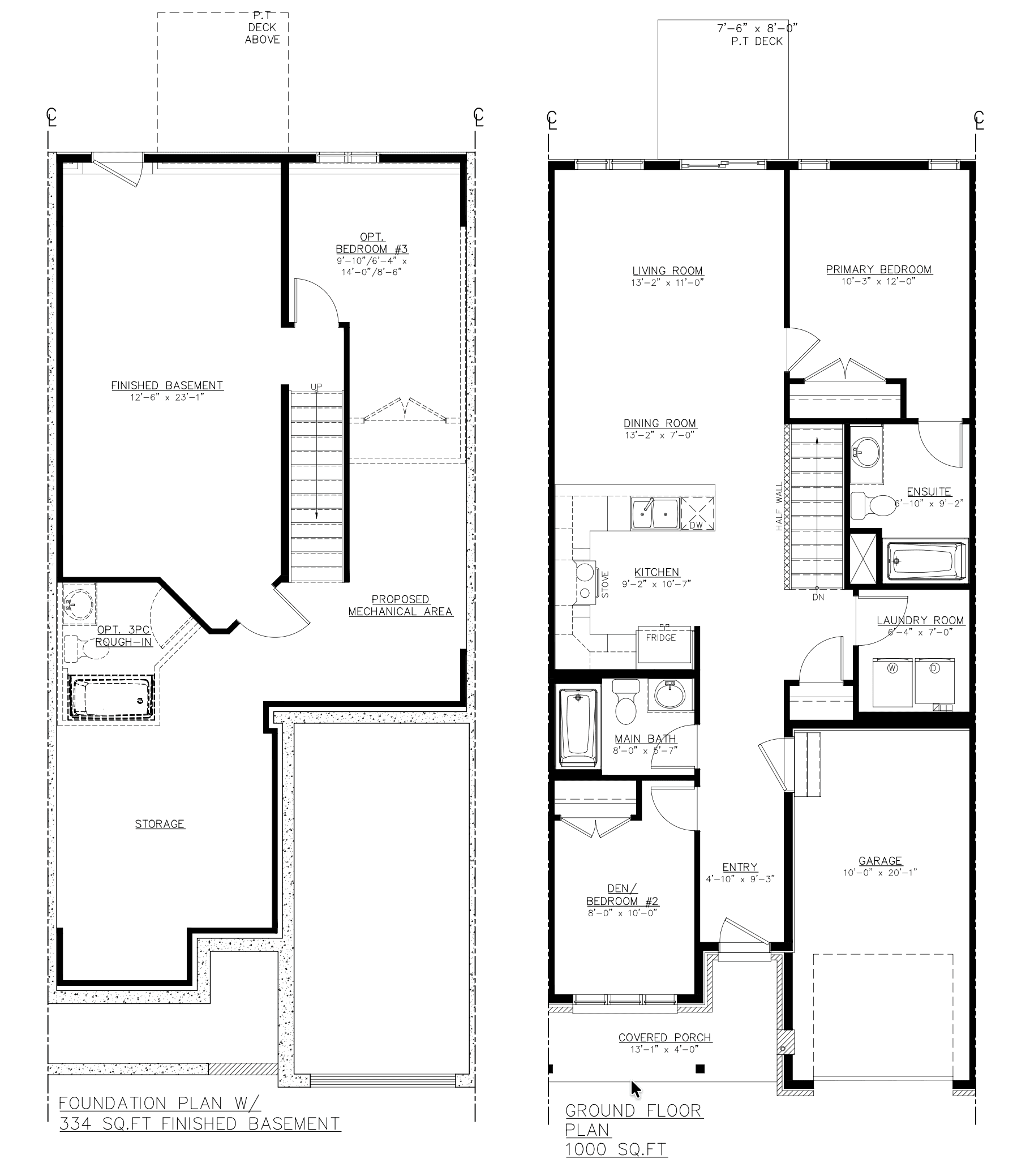
BF3-25C Alden Interior Bungalow Townhome
The Alden is a thoughtfully designed end-unit walkout bungalow townhome offering 1,334 sq ft of main-floor living, plus a finished basement—giving you the space to live and grow.
HOME HIGHLIGHTS:
ENERGY STAR-certified home
Open concept layout across main floor
Front elevation featuring stone and vinyl siding
Finished walkout basement including rec room
Triple glazed windows
KITCHEN FEATURES:
Functional island layout with pendant lights
Designer selected cabinetry with laminate countertops
Chrome finish cabinet hardware
Soft closing hinge and slide systems
Double bowl stainless steel drop-in sink
Chrome finish single handle faucet
BATHROOM FEATURES:
Acrylic one-piece walk-in shower with glass shower door in ensuite
5’ soaker tub/shower with tiled surround in main bathroom
Chrome finish fixtures in bathrooms
Comfort height and water efficient toilets
Designer selected cabinetry with laminate countertops
Chrome finish cabinet hardware
Soft closing hinge and slide systems
Privacy locks in all bathrooms
Porcelain drop-in rectangular sink
INTERIOR FINISHES:
Wide plank laminate flooring in living area and kitchen
Carpet flooring in all bedrooms
Large format 12” x 24” porcelain tile floors in entry, bathrooms and laundry room
Carpet flooring with foam underpad in finished basement area
Carpet with foam underpad on stairs
Designer curated lighting package
Two panel interior doors with satin nickel finish lever style door handles
Modern trim with flat finish ceilings
Built-in closet shelving in all bedrooms
Low-VOC paint
OUTDOOR FEATURES:
Sodded Front & Year yards
Asphalt Driveway
Patio Stone Walkway
INCLUDED APPLIANCES:
Stainless steel finish kitchen appliances - Fridge, stove, chimney style hoodfan, dishwasher
White finish washer and dryer




Closing - Fall 2026
BF3-02D Ashford End Two-Storey Townhome
1638 sqft
3
2.5

Closing - Fall 2026
BF3-02C Ashford Interior Two-Storey Townhome
1595 sqft
3
2.5

Closing - Fall 2026
BF3-02B Ashford Interior Two-Storey Townhome
1595 sqft
3
2.5



