
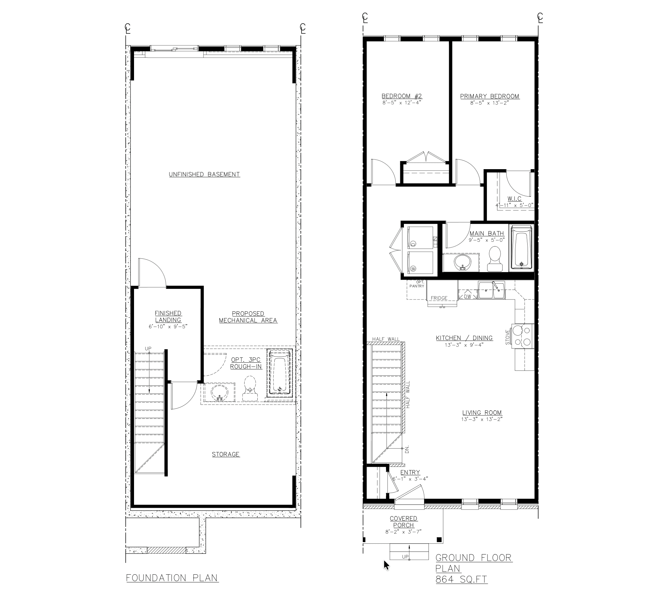
BF3-32D Interior Bungalow Townhome
The Eldora model is a walk out bungalow offering 864 sq ft of stylish, efficient living.
Home Highlights:
ENERGY STAR-certified home
Open concept layout across main floor
Front elevation featuring stone and vertical siding
Triple glazed windows
Heat pump (rental)
Air conditioning included
Walkout basement with patio door
Basement bathroom rough-in*
Kitchen Features:
Designer selected cabinetry with laminate countertops
Soft close hardware
Chrome finish cabinet hardware
Double stainless steel overmount sink
Chrome finish single handle faucet
Bathroom Features:
5’ soaker tub/shower with tiled surround in main bathroom
Chrome finish fixtures in bathrooms
Comfort height and water efficient toilets
Designer selected cabinetry with laminate countertops
Chrome finish cabinet hardware
Soft close hardware and privacy locks
Porcelain overmount rectangular sink
Interior Finishes:
Wide plank laminate flooring on main floor areas and laundry closet
Large format 12” x 24” porcelain tile floors in main bathroom
Carpet with foam underpad in bedrooms
Carpet with foam underpad on stairs
Half wall in living area with MDF cap and red oak handrail
Designer curated lighting package
Two-panel interior doors with satin nickel finish lever style door handles
Modern trim with flat finish ceilings
Built-in closet shelving in all bedrooms
Low-VOC paint
Outdoor Features:
Sodded Front & Rear yards
Asphalt Driveway
Patio Stone Walkway
Included Appliance Voucher:
Stainless steel finish kitchen appliances - Fridge, Stove, Microwave Hoodfan, Dishwasher










Build from Order – 6+ Months
BF3-32A End Bungalow Townhome
1336 sqft
3
1

Build from Order – 6+ Months
BF3-02D Ashford End Two-Storey Townhome
1638 sqft
3
2.5

Build from Order – 6+ Months
BF3-02C Ashford Interior Two-Storey Townhome
1595 sqft
3
2.5



