
BF3-33B Eldora Interior Bungalow Townhome
Bellamy Farm Phase 3 | Where Life Truly Begins
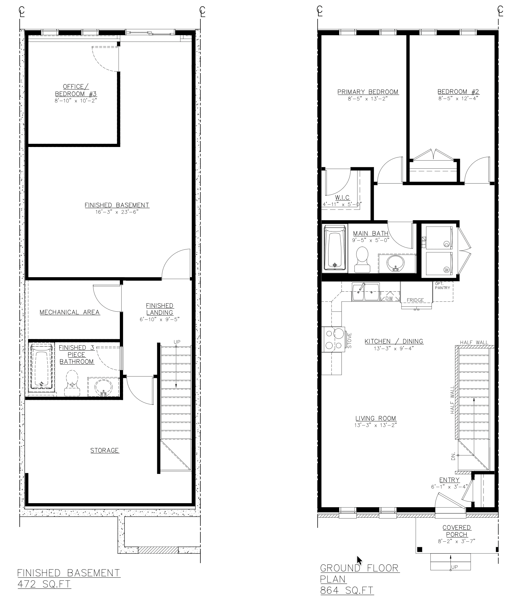
The Eldora model is a walk out bungalow offering 1336 sq ft of stylish, efficient living. Perfect for retirees buyers or downsizers.
Home Highlights:
ENERGY STAR-certified home
Open concept layout across main floor
Front elevation featuring stone and vertical siding
Finished walkout basement including rec room, bedroom/home office, and bathroom*
Triple glazed windows
Heat pump and air conditioning (rental)
Kitchen Features:
Designer selected cabinetry with quartz countertops*
Extended upper cabinetry with crown moulding*
Brushed nickel finish cabinet hardware*
Soft closing hinge and slide systems
Double stainless steel undermount sink*
Arctic stainless finish single handle faucet*
Under cabinet valance lights and trim*
Tiled backsplash*
Bathroom Features:
5’ soaker tub/shower with tiled surround in main and basement bathroom
Stainless steel finish fixtures in bathrooms*
Comfort height and water efficient toilets
Designer selected cabinetry with quartz countertops*
Soft closing hinge and slide systems along with privacy locks
Porcelain undermount rectangular sink*
Interior Finishes:
Wide plank laminate flooring on main floor areas and laundry closet
Large format 12” x 24” porcelain tile floors in main and basement bathroom
Wide plank laminate flooring in bedrooms*
Carpet with foam underpad in finished basement area
Carpet with foam underpad on stairs
Half wall in living area with MDF cap and red oak handrail
Pot lights included in:
Living Room*
Kitchen*
Main Bathroom*
Two-panel interior doors with satin nickel finish lever style door handles
Modern trim with flat finish ceilings
Built-in closet shelving in all bedrooms
Low-VOC paint
Outdoor Features:
Sodded Front & rear yards
Asphalt Driveway
Patio Stone Walkway
Included Appliances:
Stainless steel finish kitchen appliances - Fridge, stove, microwave hoodfan, dishwasher
White finish washer and dryer










Build from Order – 6+ Months
BF3-32A End Bungalow Townhome
1336 sqft
3
1

Build from Order – 6+ Months
BF3-02D Ashford End Two-Storey Townhome
1638 sqft
3
2.5

Build from Order – 6+ Months
BF3-02C Ashford Interior Two-Storey Townhome
1595 sqft
3
2.5



