
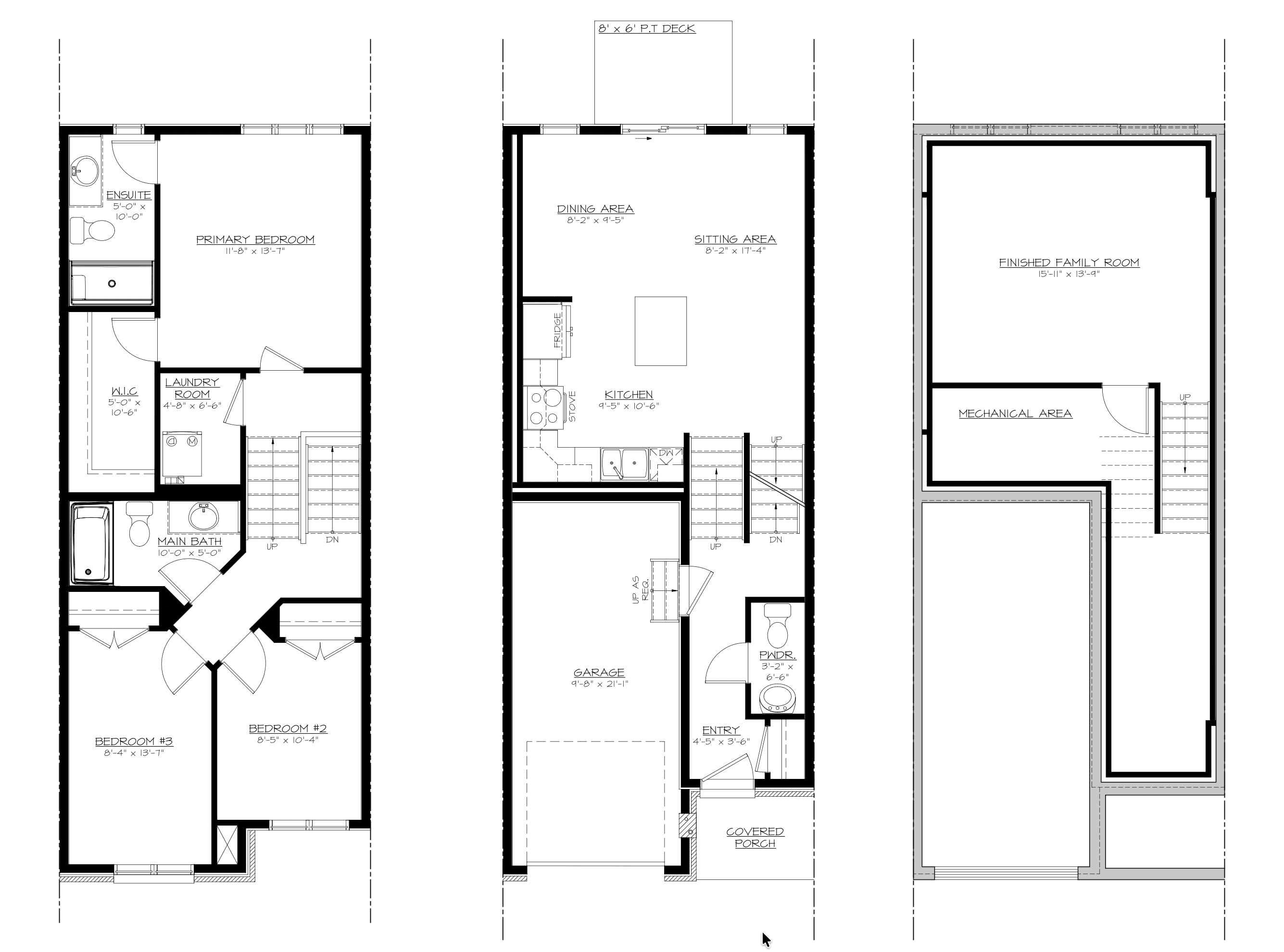
MT01B Wellington Interior Two-Storey Townhome
Below are all the features which come with the standard version of this model.
*Indicates upgrades which have been included in the home.
HOME HIGHLIGHTS:
ENERGY STAR-certified home
Open concept layout across main floor
Front elevation featuring stone and vinyl siding
Finished basement rec room
Triple glazed windows
KITCHEN FEATURES:
Functional island layout with pendant lights
Designer selected cabinetry with quartz countertops*
Matte black finish cabinet hardware*
Soft closing hinge and slide systems
Single bowl stainless undermount sink*
Matte black finish single handle faucet*
BATHROOM FEATURES:
Ensuite walk-in shower with tiled walls and glass shower door*
5’ soaker tub/shower with tiled surround in main bathroom
Matte black finish fixtures in bathrooms*
Comfort height and water efficient toilets
Designer selected cabinetry with laminate countertops
Matte black finish cabinet hardware*
Soft closing hinge and slide systems
Privacy locks in all bathrooms
Porcelain drop-in rectangular sink
INTERIOR FINISHES:
Wide plank laminate flooring in living area and kitchen
Wide plank laminate flooring in bedrooms and hallway*
Large format 12” x 24” porcelain tile floors in entry, bathrooms and laundry room
Carpet flooring with foam underpad in finished basement area
Hardwood stairs with red oak handrail and black metal spindles*
Designer curated black lighting package*
Pot lights included in:
Ensuite*
Kitchen*
Finished Rec Room*
Double panel interior doors with matte black finish lever style door handles*
Modern trim with flat finish ceilings
Built-in closet shelving in all bedrooms
Low-VOC paint
OUTDOOR FEATURES:
Sodded Front & Year yards
Asphalt Driveway
Patio Stone Walkway
INCLUDED APPLIANCES:
Stainless steel finish kitchen appliances - Fridge, stove, chimney style hood fan, dishwasher
White finish washer and dryer










Build from Order – 6+ Months
MT02D Wellington End Two-Storey Townhome
1329 sqft
3
2.5

Build from Order – 6+ Months
MT02C Wellington Interior Two-Storey Townhome
1287 sqft
3
2.5

Build from Order – 6+ Months
MT02B Wellington Interior Two-Storey Townhome
1287 sqft
3
2.5



