
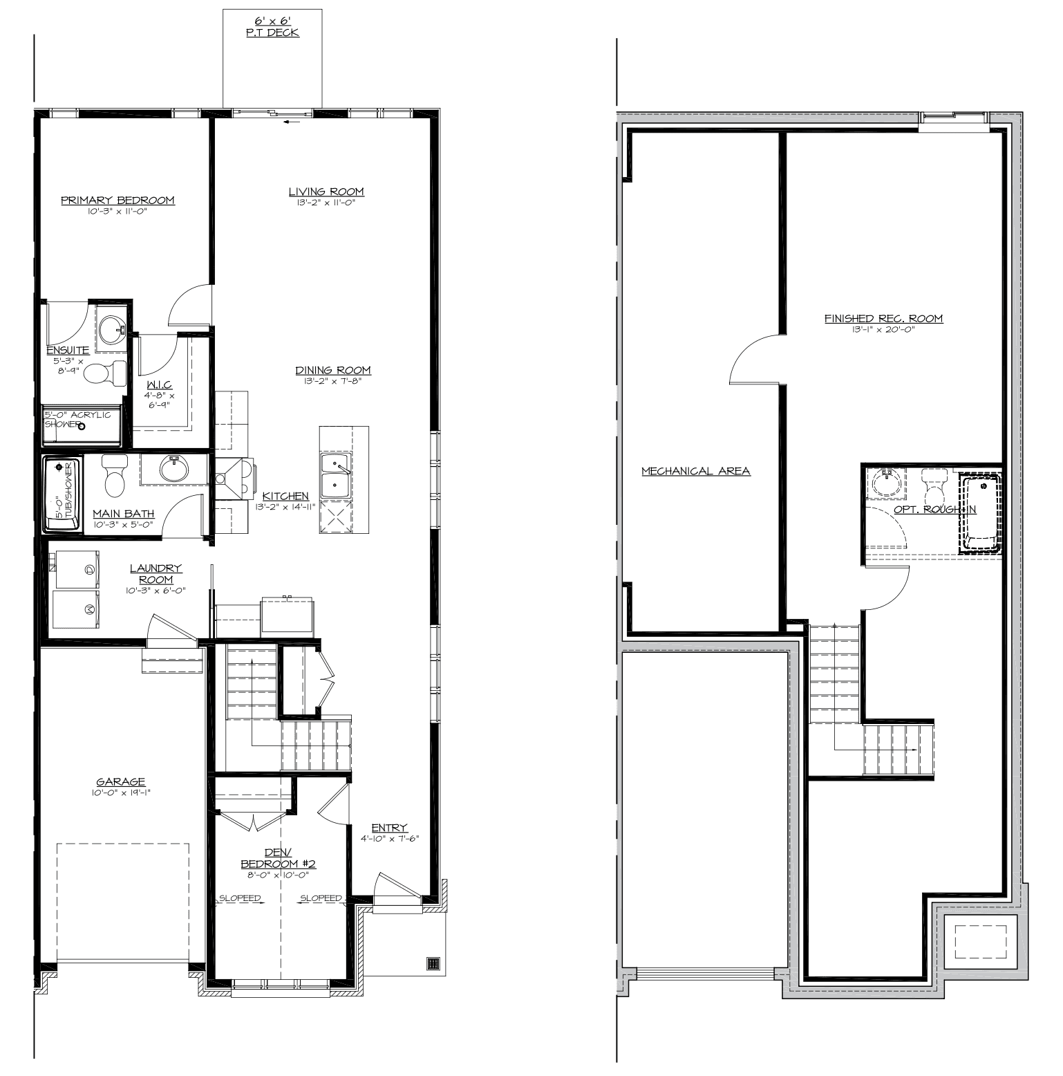
MT12D Elgin End Unit Bungalow Townhome
Below are all the features which come with the standard version of this model.
*Indicates upgrades which have been included in the home.
HOME HIGHLIGHTS:
ENERGY STAR-certified home
Open concept layout across main floor
Front elevation featuring stone and vinyl siding
Finished basement including rec room and a 3 piece bathroom rough-in*
Triple glazed windows
Remote garage door opener*
KITCHEN FEATURES:
Functional island layout with pendant lights
Designer selected two-tone cabinetry with quartz countertops*
Pots and pans drawers*
Extended upper cabinetry with crown moulding*
Matte black finish cabinet hardware*
Soft closing hinge and slide systems
Single bowl stainless undermount sink*
Matte black finish single handle faucet*
Tiled backsplash*
Waterline to fridge*
BATHROOM FEATURES:
Ensuite walk-in shower with tiled walls and glass shower door*
5’ soaker tub/shower with tiled surround in main bathroom
Matte black finish fixtures in bathrooms*
Comfort height and water efficient toilets
Designer selected cabinetry with quartz countertops*
Matte black finish cabinet hardware
Soft closing hinge and slide systems
Privacy locks in all bathrooms
Porcelain undermount rectangular sink*
INTERIOR FINISHES:
Wide plank laminate flooring in living area and kitchen
Wide plank laminate flooring in bedrooms*
Upgraded large format 12” x 24” porcelain tile floors in entry, bathrooms and laundry room*
Carpet flooring with foam underpad in finished basement area
Hardwood stairs with red oak handrail and black metal spindles*
Designer curated black lighting package*
Pot lights included in:
Ensuite*
Dining Room*
Entry and Hallway*
Living Room*
Kitchen*
Finished Rec Room*
Upgraded single panel interior doors with matte black finish lever style door handles*
Upgraded paint colour (walls only)*
Modern trim with flat finish ceilings
Built-in closet shelving in all bedrooms
Low-VOC paint
OUTDOOR FEATURES:
Sodded Front & Year yards
Asphalt Driveway
Patio Stone Walkway
Gas line to BBQ*
INCLUDED APPLIANCES:
Stainless steel finish kitchen appliances - Fridge, stove, chimney style hoodfan, dishwasher
White finish washer and dryer


Build from Order – 6+ Months
MT02D Wellington End Two-Storey Townhome
1329 sqft
3
2.5

Build from Order – 6+ Months
MT02C Wellington Interior Two-Storey Townhome
1287 sqft
3
2.5

Build from Order – 6+ Months
MT02B Wellington Interior Two-Storey Townhome
1287 sqft
3
2.5



